win%3Dalliance-networking-session
win-alliance-white
win-herastrau-win-real-estate
win%20real%20estate
win-gallery-win-alliance
win-gallery-alb
win-tireanu-motorsport-win-alliance%20copy
win%20tureanu%20motorsport

Apartament de lux, 2 camere - WIN Herăstrău

€345,312.00

Romania
ID WIN36
  • 2 Camere
  • 2 Băi
  • 64.9 mp

Proiectul este format din 6 imobile de apartamente, spații comerciale și birouri. Acesta completează țesutul urban dintre bd. N.G. Caramfil si parcul Herăstrău și asigură continuitatea traseelor pietonale dintre cele două. Ne-am propus să creăm fondul pentru obținerea sentimentului de apartenență și de armonie în zonă prin includerea în conceptul de amenajare a unor piațete și a unui amfiteatru reinterpretat, care să aducă oamenii împreună în jurul funcțiunilor publice.

Citește mai mult

Caracteristici

Camere: 2
Băi: 2
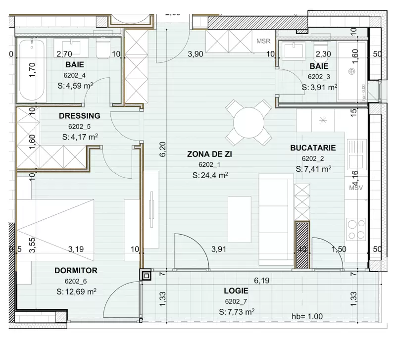
Suprafață totală: 78.48 mp
Suprafață utilizabilă: 64.9 mp
Suprafață teren: 64.9 mp
Tip proprietate: Apartments
Etaje: 2

Alte detalii

Suprafață construită logie 9.39 mp
Suprafață utilă logie 7.73 mp
Zona de zi 24.40 mp
Bucătărie 7.41 mp
Baie 3.91 mp
Dormitor 12.69 mp
Dressing 4.17 mp
Baie 4.59 mp
Logie 7.73 mp
2631748868331
Sebastian Ciobanu
Vezi număr telefon

Pentru îmbunătățirea experienței de navigare, acest site folosește Cookies. Continuând navigarea îți exprimi acordul asupra utilizării acestora, în conformitate cu Politica de Cookies.